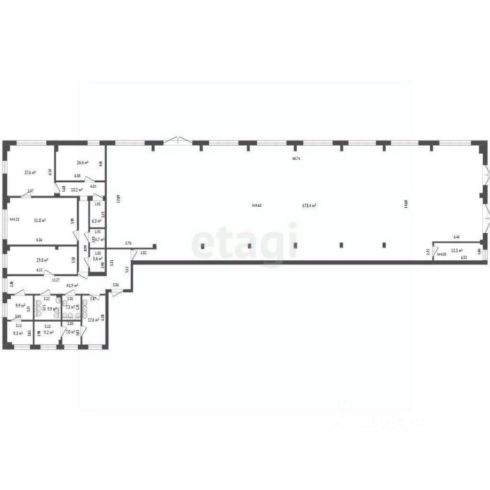
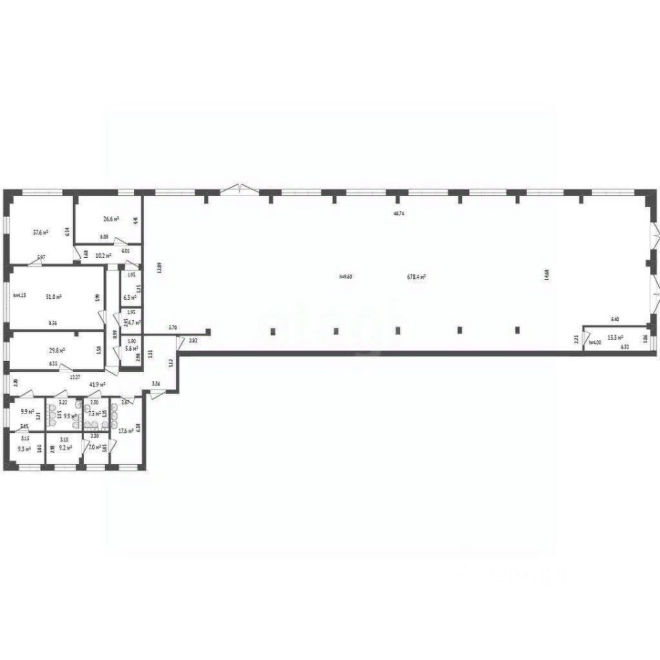
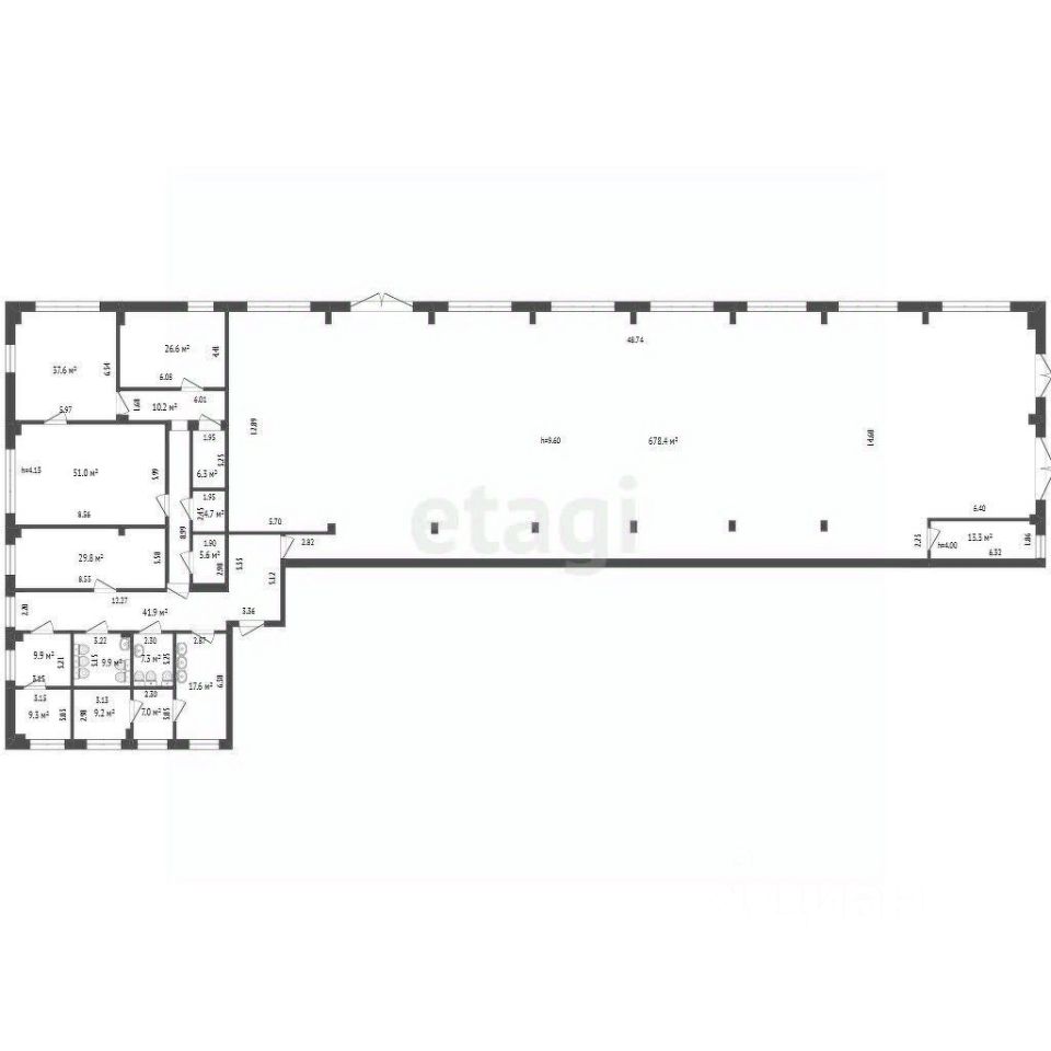
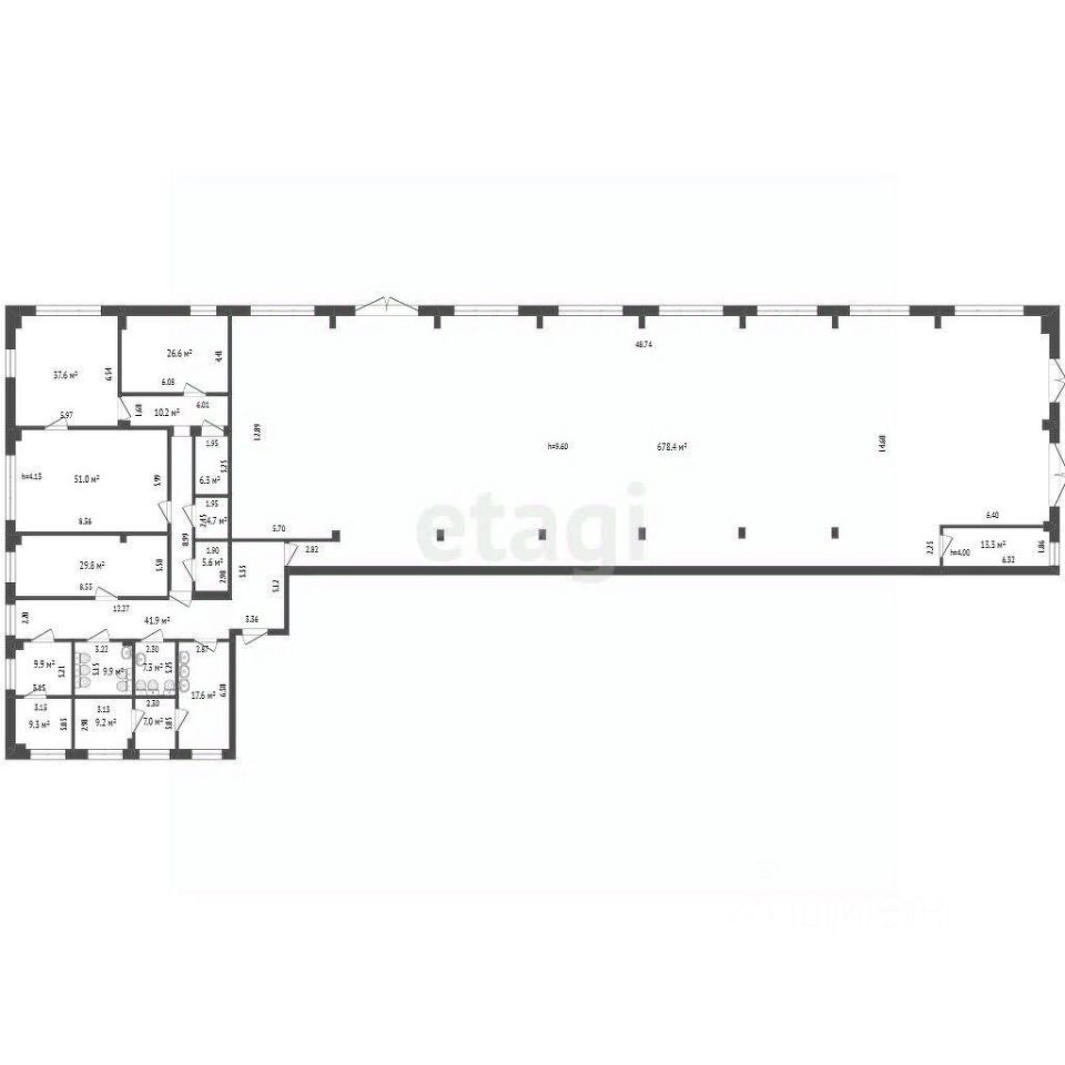
Продаётся бОльшое нежилое помещение площадью 985,9 м² на улице Адмирала Нахимова.
Помещение обладает значительным потенциалом для различных видов коммерческой деятельности благодаря удачному расположению, высокой грузоподъемности и свободной конфигурации зон.
Объект расположен на второй линии от основной дороги, что обеспечивает удобный подъезд и минимальные транспортные затруднения.
Помещение предназначено для производственных или складских задач, а также для оказания услуг. Его планировка включает основное пространство с высотой потолков 9,6 метров!!!, оборудованное кран-балкой, что позволяет размещать крупногабаритное оборудование и организовывать многоуровневые системы хранения.
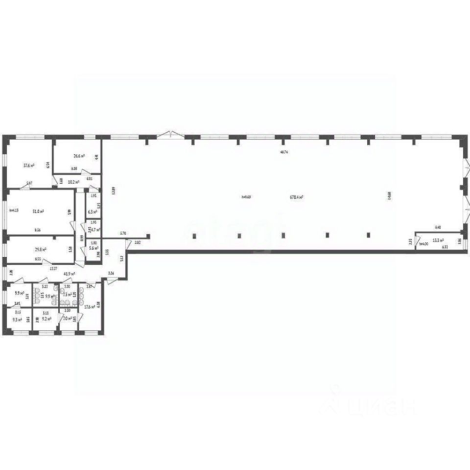
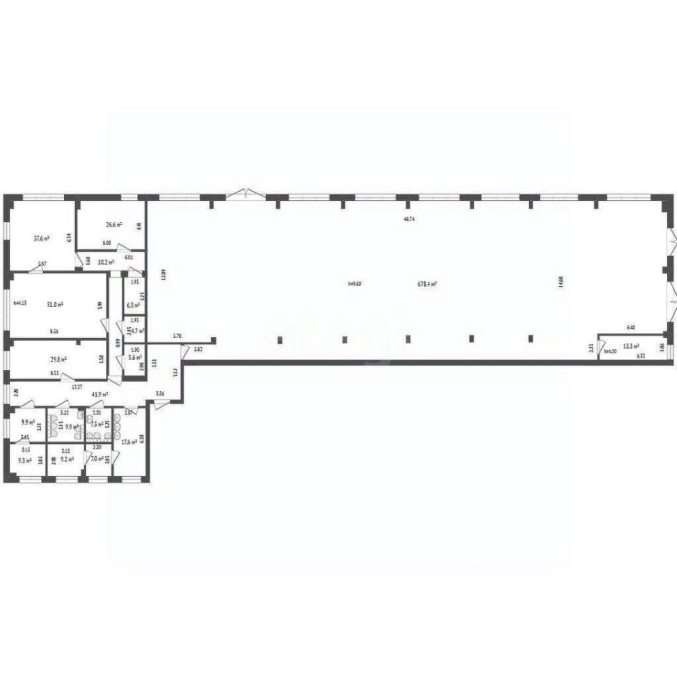
Продаётся бОльшое нежилое помещение площадью 985,9 м² на улице Адмирала Нахимова.
Помещение обладает значительным потенциалом для различных видов коммерческой деятельности благодаря удачному расположению, высокой грузоподъемности и свободной конфигурации зон.
Объект расположен на второй линии от основной дороги, что обеспечивает удобный подъезд и минимальные транспортные затруднения.
Помещение предназначено для производственных или складских задач, а также для оказания услуг. Его планировка включает основное пространство с высотой потолков 9,6 метров!!!, оборудованное кран-балкой, что позволяет размещать крупногабаритное оборудование и организовывать многоуровневые системы хранения. На первом и втором этаже расположен административный блок, что обеспечивает четкое зонирование рабочих и управленческих процессов.
Коммуникации к зданию подведены (в данный момент отключены), но требуют модернизации под конкретные нужды нового собственника.
Внутренняя отделка выполнена на стадии черновой подготовки: бетонная стяжка пола, выровненные стены и потолки. Это предоставляет возможность адаптировать пространство под индивидуальные технологические требования без необходимости демонтажных работ.
Финансирование покупки возможно с использованием коммерческой ипотеки по ставке ВСЕГО от 3% до 11% годовых на срок до 36 месяцев. Готовы рассмотреть различные варианты приобретения с вашей стороны.
ПОЧЕМУ МЫ? • Федеральное, международное агентство недвижимости 1 в России. • Полное юридическое сопровождение сделки. • Широкая специализация на рынке недвижимости. • Работаем со всеми банками и страховыми компаниями, предоставляем индивидуальные скидки от партнёров. • Программа лояльности для клиентов ''Этажи бонус''. • Высококвалифицированные специалисты, которые помогают Вам во всем процессе.
Звоните прямо сейчас, узнавайте подробности и записывайтесь на просмотр!
Код пользователя: 1245788628 Номер в базе: 8993560