Если цена в объявлении изменится, мы сразу сообщим вам об этом на электронную почту.
Нажимая «Подписаться», вы соглашаетесь с правилами.
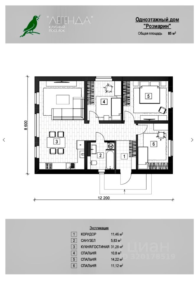
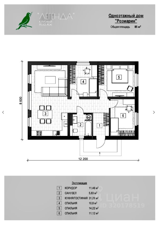
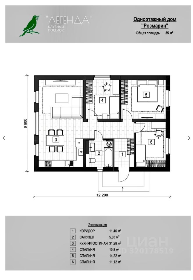
продам дом, пр-д-я Фермерская7 000 000 ₽
27 июля 2025
Дата публикации объявления
Обн. сегодня
Дата обновления объявления
1
Количество просмотров (+ просмотры за сегодня)
Топ
82 353 ₽/м²
Чистая продажа
Термин "Чистая продажа" означает, что в квартире никто не прописан или
есть куда выписаться и вывезти вещи. Это лучший вариант для покупателя.
Вероятность срыва сделки минимальна.
Этажей1
Площадь участка5 соток
Общая площадь85 м2
Материал домакирпич
ЭлектричествоЕсть
Газоснабжениецентральное
Продаётся готовый дом в клубном посёлке Легенда. Планировка Розмарина.