Если цена в объявлении изменится, мы сразу сообщим вам об этом на электронную почту.
Нажимая «Подписаться», вы соглашаетесь с правилами.
продам дом, пр-д-я Фермерская8 000 000 ₽
27 июля 2025
Дата публикации объявления
Обн. 3 апр
Дата обновления объявления
69 565 ₽/м²
Чистая продажа
Термин "Чистая продажа" означает, что в квартире никто не прописан или
есть куда выписаться и вывезти вещи. Это лучший вариант для покупателя.
Вероятность срыва сделки минимальна.
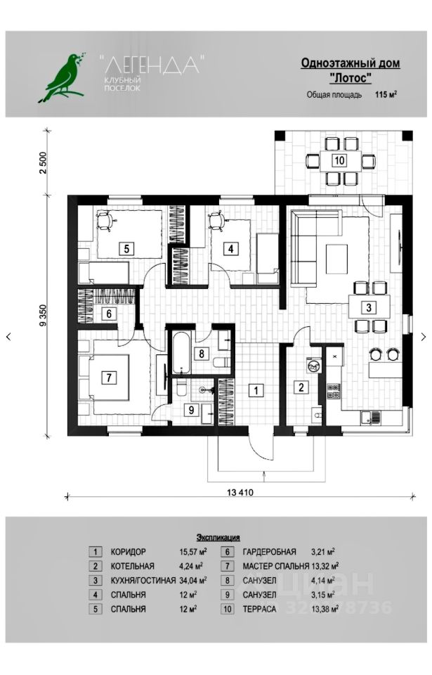
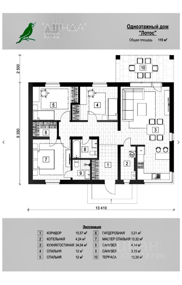
Этажей1
Площадь участка5 соток
Общая площадь115 м2
Материал домакирпич
ЭлектричествоЕсть
Газоснабжениецентральное
Продаётся готовый дом в посёлке Кирпичного завода. Планировка Лотос.