Предлагаем вашему вниманию уникальную возможность для инвестиций в высокодоходный арендный бизнес!
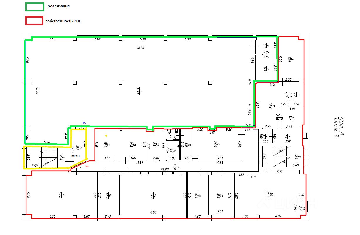
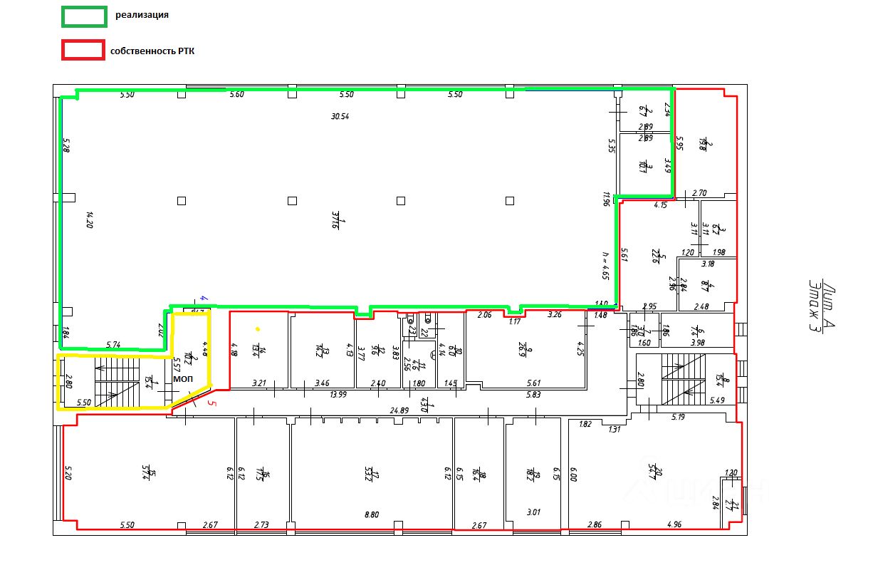
Продаются помещения в здании на 1, 2 и 3 этажах общей площадью 1836,6 кв.м (кадастровые номера: 30:08:010806:167, 30:08:010806:9). Здание располагается на земельном участке площадью 3380 кв.м, который находится в собственности, доля в праве, относящаяся к помещениям, составляет около 900 кв.м (кадастровый номер 30:08:010806:9).
Важным фактором для успешного бизнеса является наличие якорного арендатора - сети магазинов Пятерочка. Площадь, сдающаяся в аренду, составляет 524 кв.м с договором аренды, действующим до 12.07.2031 года. Это обеспечивает стабильный доход на долгосрочной основе.
Предлагаем вашему вниманию уникальную возможность для инвестиций в высокодоходный арендный бизнес!
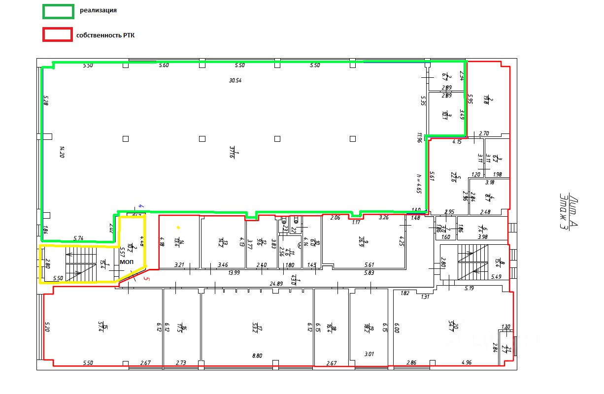
Продаются помещения в здании на 1, 2 и 3 этажах общей площадью 1836,6 кв.м (кадастровые номера: 30:08:010806:167, 30:08:010806:9). Здание располагается на земельном участке площадью 3380 кв.м, который находится в собственности, доля в праве, относящаяся к помещениям, составляет около 900 кв.м (кадастровый номер 30:08:010806:9).
Важным фактором для успешного бизнеса является наличие якорного арендатора - сети магазинов Пятерочка. Площадь, сдающаяся в аренду, составляет 524 кв.м с договором аренды, действующим до 12.07.2031 года. Это обеспечивает стабильный доход на долгосрочной основе.
Здание оснащено всеми необходимыми коммуникациями: имеются центральные системы, отопление осуществляется газом благодаря собственной котельной.
Объект находится в густонаселенном районе с высоким пешеходным и автомобильным трафиком, в окружении офисных центров и инфраструктуры, включая многоэтажные жилые дома, учреждения сферы услуг и госорганизации, такие как Сбербанк и центральная площадь города.
К тому же, предусмотрена возможность размещения рекламной конструкции на фасаде здания, а также подключения городских телефонных линий и высокоскоростного Интернета.
Обязательное условие при покупке обратная аренда помещений на 2-м этаже площадью 96,6 кв.м на срок 11 месяцев с арендной ставкой 250 руб. за кв.м (без учета НДС).
Предложение осуществляется от собственника ПАО Ростелеком с ценой, включающей НДС.
Мы открыты к сотрудничеству с брокерами и риелторами и готовы к заключению договора на оказание услуг. Также у нас есть множество других объектов недвижимости в различных регионах ЮФО.
Не упустите шанс получить прибыльный актив! Звоните, будем рады ответить на все ваши вопросы!